Ces écrans possèdent un haut niveau de rafraichissement, haut niveau de gris et haute luminosité. Ces qualités permettent d’assurer une excellente performance d’affichage même en plein soleil. Grâce à des jambes de support, la position de l’écran peut être adaptée en fonction de l’angle de vision souhaité.

Principales caractéristiques:
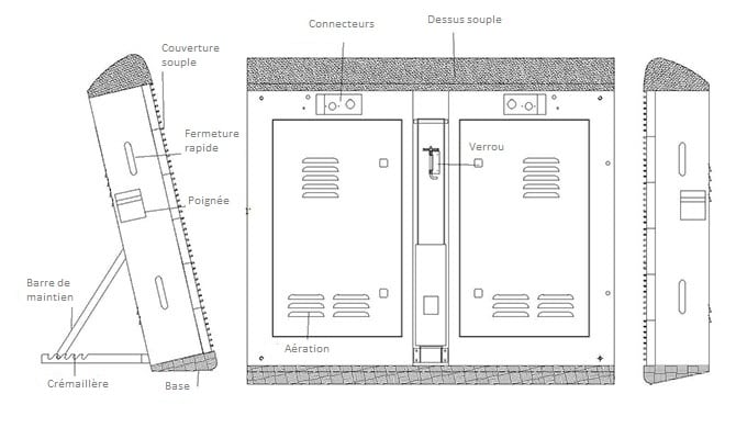
– Grâce à un degré de protection IP65 garantissant une étanchéité à l’eau, nos écrans de bords de stade sont protégés contre la pluie.
– Une couverture souple permet de protéger les athlètes en cas de collision contre le panneau et réduit les risques de blessures.
– Les fermetures rapides, les poignées de transport ainsi que les connecteurs (courant électrique et signal vidéo) permettent d’effectuer une installation simple et rapide, option très appréciée lors d’installation en événementiel.
– Le système de crémaillère peut être utilisé pour ajuster l’angle de vision de l’écran jusqu’à 140 degrés.
– Ces écrans polyvalents peuvent être ré-assemblés pour former un grand écran.

Panneau contour de stade

